Eladó téglalakás - Zalaegerszeg

sürgős!
Sürgős
KAPCSOLAT
Czeigli-Nekuti Natália


+36 20 441

nekuti.natalia@

Az időpont kérés naptár ikonja
IDŐPONTOT KÉREK
A visszahívás kérés telefon ikonja egy azt körbe ölelő nyíllal
VISSZAHÍVÁST KÉREK
Ajánlom egy ismerősömnek ikon
AJÁNLOM EGY ISMERŐSÖMNEK
Facebook megosztás ikon
MEGOSZTÁS

KAPCSOLATFELVÉTEL

Küldés

Az üzenetet sikeresen elküldtük!
Hiba történt!
INGATLAN ADATAI

Ingatlan jellege

téglalakás

Belső terület

112 m²

Tájolás

délkelet

Építési állapot

használt

Építési mód

tégla

Szobák száma

2 szoba

Emelet

nincs emelet.

Épület szintje

3.

Épült

2002

Lift

nincs

Ingatlan állapot

kívül: jó
belül: részben felújított

Fűtés

padlófűtés

Komfort

összkomfort

Parkolás

van fedetlen felszíni beálló

Energetika

nincs megadva

Az időpont kérés naptár ikonja
HTML
Az időpont kérés naptár ikonja
PDF
Eladó téglalakás
Ingatlan azonosító:
180_hkg

Zala megye, Zalaegerszeg

Irányár

56 M Ft
(500 E Ft/㎡)

Szobák

2 szoba

Terület

112 m²
INGATLAN LEÍRÁSA
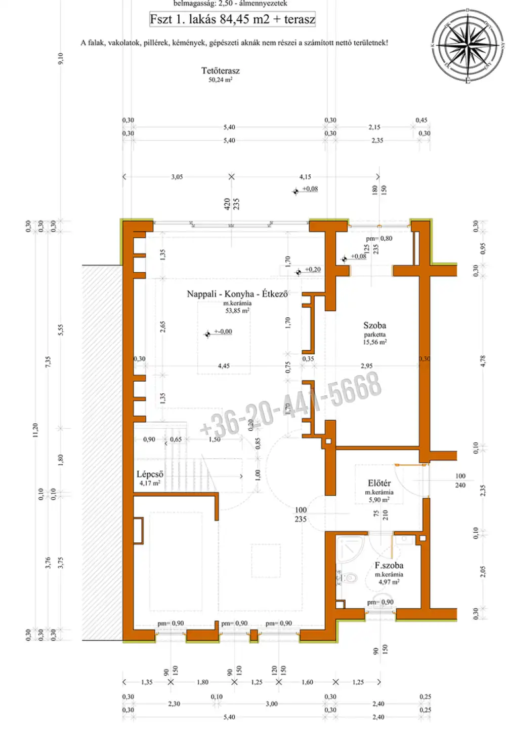
Korábbi luxuslakás 25 m²-es terasszal

Zalaegerszeg belvárosában eladó egy különleges adottságokkal rendelkező, felújítást igénylő, mégis rendkívül csendes ingatlanegyüttes, amely pároknak és befektetőknek egyaránt kiváló választás.

A hirdetés látványterveket is tartalmaz, amelyek segítenek elképzelni az ingatlanban rejlő valódi potenciált!

1. emeleti lakás – 87 m² + 25 m² belső udvari terasz

Irányár: 56.000.000 Ft

Az alsó lakás egy 87 m²-es, tágas elrendezésű otthon, amelyhez egy impozáns, 25 m²-es belső udvari terasz kapcsolódik

– 1 hálószoba + egy szoba kialakítható a nappaliból is
– amerikai konyhás nappali
– padlófűtés a komfortos hőérzetért

A terasz a belső udvarra néz, így a lakás meglepően csendes, ideális pihenéshez vagy vendégfogadáshoz❗️
Ehhez a lakáshoz zárt parkolóhely is tartozik, ami a belvárosban ritka és jelentős előny ‼️

A két lakást korábban belső lépcső kötötte össze, amely megszüntetésre került, így két önálló lakásként kerülnek értékesítésre – ez különösen vonzó befektetési szempontból❗️

Az ingatlan felújítást igényel, ami lehetőséget ad arra, hogy az új tulajdonos saját ízlésére szabja, és valódi értéket teremtsen. Fantázia bőven van benne!

Kivételes lehetőség, amely ritkán adódik a piacon❗️

Elérhetőségeim:
+36 20 441 5668
nekuti.natalia@kingcity.hu

INGATLAN ADATAI

Ingatlan jellege
téglalakás
Belső terület
112 m²
Tájolás
délkelet
Építési állapot
használt
Építési mód
tégla
Szobák száma
2 szoba
Emelet
nincs emelet.
Épület szintje
3.
Épült
2002
Lift
nincs
Ingatlan állapot
kívül: jó
belül: részben felújított
Fűtés
padlófűtés
Komfort
összkomfort
Parkolás
van fedetlen felszíni beálló
Energetika
nincs megadva

Hitelkalkulátor


KAPCSOLAT
Czeigli-Nekuti Natália
Czeigli-Nekuti Natália


+36 20 441 5668

nekuti.natalia@kingcity.hu

KAPCSOLAT
Czeigli-Nekuti Natália

+36 20 441

nekuti.natalia@

Az időpont kérés naptár ikonja
IDŐPONTOT KÉREK
A visszahívás kérés telefon ikonja egy azt körbe ölelő nyíllal
VISSZAHÍVÁST KÉREK
Ajánlom egy ismerősömnek ikon
AJÁNLOM EGY ISMERŐSÖMNEK
Facebook megosztás ikon
MEGOSZTÁS

KAPCSOLATFELVÉTEL

Küldés

Az üzenetet sikeresen elküldtük!
Hiba történt!
INGATLAN ADATAI

Ingatlan jellege

téglalakás

Belső terület

112 m²

Tájolás

délkelet

Építési állapot

használt

Építési mód

tégla

Szobák száma

2 szoba

Emelet

nincs emelet.

Épület szintje

3.

Épült

2002

Lift

nincs

Ingatlan állapot

kívül: jó
belül: részben felújított

Fűtés

padlófűtés

Komfort

összkomfort

Parkolás

van fedetlen felszíni beálló

Energetika

nincs megadva

Az időpont kérés naptár ikonja
HTML
Az időpont kérés naptár ikonja
PDF
Zala megye - Zalaegerszeg
Zala megye - Zalaegerszeg
Zala megye - Zalaegerszeg
Zala megye - Zalaegerszeg
Zala megye - Zalaegerszeg
Zala megye - Zalaegerszeg
Zala megye - Zalaegerszeg
Zala megye - Zalaegerszeg
Zala megye - Zalaegerszeg
Zala megye - Zalaegerszeg
Zala megye - Zalaegerszeg
Zala megye - Zalaegerszeg
Zala megye - Zalaegerszeg